Architekten und Ingenieure in SchüttorF
Aktuelles - Projekte und News
 
NEUBAU SOZIOKULTURELLES ZENTRUM IN SCHÜTTORF
Nach schier endlosen Diskussionen über mehr als eine Dekade hat sich die Stadt Schüttorf nunmehr durchgerungen, ein „soziokulturelles Zentrum“ an der Fabrikstraße in Schüttorf auf einem Gelände der ehemaligen Textilfabrik Schlikker & Söhne zu bauen. In diesem Zentrum soll das weit über seine Grenzen bekannte Jugend- und Kulturzentrum „Komplex“ eine neue Heimat finden.
Aus einem Realisierungswettbewerb ging das Hamburger Büro Wacker Zeiger Architekten verdient als Sieger hervor. Wir freuen uns, für diese netten Kollegen die Leistungsphasen 6 – 8 (Ausschreibung, Vergabe u. örtliche Bauleitung) übernehmen zu dürfen.
Der Entwurf besticht durch seine zeitlose Formensprache und seine städtebaulich einfache aber kluge Umsetzung. Der winkelförmige Neubau schließt an das bestehende unter Denkmalschutz stehende Betriebsratsgebäude an, wobei der Vorplatz ein angemessenes Entree zur Fabrikstraße bildet. 
Die Preisrichter im Wettbewerb bescheinigen dem Entwurf einen eigenständigen Ausdruck, der sich gut in das Stadtbild einfügt. Der Baukörper spricht eine zeitgemäße Sprache und bildet eine schöne Gesamtheit mit hoher architektonischer Qualität. Durch die Anordnung der einzelnen Räumlichkeiten ist die Intimität jedes Bereiches gewahrt.
Dabei bildet der Saal in der Mitte den Schwerpunkt und das Herzstück.
Der Neubau ist in Massivbauweise und mit einer Klinkerfassade konzipiert. Die Ziegelfassaden stehen im Kontrast und in Spannung zu den großzügigen Glasfassaden, die sich als präzise, scharfkantige Einschnitte präsentieren. Die schmalen, anthrazitfarbenen Rahmungen unterstreichen die Scharfkantigkeit noch einmal.
Das ehemalige Betriebsratsgebäude wird äußerlich lediglich im Übergangsbereich zum Foyer verändert. Hier erlaubt sich der Entwurf eine funktionsbedingte Öffnung der Fassade. Ansonsten werden ausschließlich vorhandene /zugemauerte Öffnungen aktiviert/reaktiviert. 
Bauherr
Stadt Schüttorf
Baubeginn
2024
Auftraggeber
Wacker Zeiger Architekten, Hamburg
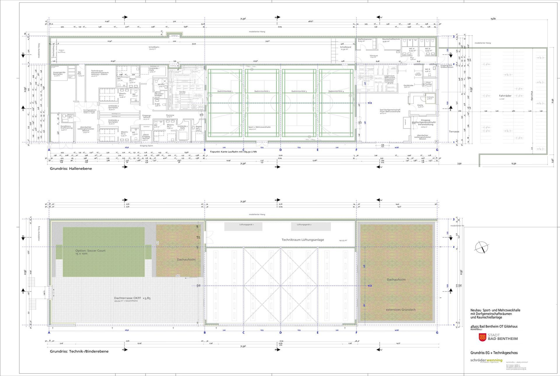
NEUBAU MEHRZWECKHALLE GILDEHAUS
Am Mühlenbergstadion in Bad Bentheim, Ortsteil Gildehaus, entsteht eine neues Mehrzweckgebäude als Sport- und Versammlungsstätte, welches neben einer 15 x 27 Meter Halle für den Schul- und Vereinssport sowie für Veranstaltungen zusätzlich eine moderne 50 Meter Raumschießanlage und Raumbereiche für die Dorfgemeinschaft Gildehaus vorsieht.
Unser Büro konnte sich im öffentlich ausgeschriebenen Bewerbungs-verfahren für diese spannende Bauaufgabe durchsetzen und wurde durch die Stadt Bad Bentheim mit den Leistungsphasen 1-8 für den Bereich Architektur beauftragt.
Der Neubau wird nach dem Abriss der Armin-Franzke-Halle an selber Stelle errichtet. Im östlichen Teil sind vor Kopf die Umkleide- und Nebenräume für die Sporthalle und den Sportplatz, Lager- und Technikraum sowie ein Kraftraum vorgesehen.
Auf der gegenüberliegenden Seite befindet sich ein großzügiges Foyer mit überdachtem Eingangsbereich, Küche, Garderobe und WC-Anlagen für die Nutzung des Gebäudes als Dorfgemeinschaftshaus und Versammlungs- und Veranstaltungsstätte.
Im rückwärtigen, in den Hang hineingeschobenen Teil, befindet sich die Raumschießanlage (RSA) für Kleinkaliber und Luftgewehr inkl. aller Nebenräume für die Gildehauser Schützengilde.
Auf dem Flachdachbereich des Umkleidetrakts ist eine großzügige Zuschauerterrasse mit Blick auf das vorhandene Mühlenbergstadion verortet.
Aufgrund der besonderen Kombination der verschiedenen Nutzungen wurden für dieses innovative Projekt im KfW 40 Standard Fördergelder aus unterschiedlichen Fördertöpfen bewilligt.
Inzwischen sind die Bestandsgebäude abgerissen und eine Hangsicherung/-befestigung durchgeführt. Der Baubeginn für die Rohbauarbeiten erfolgte Anfang Juni 2025.
Bauherr
Stadt Bad Bentheim
Baubeginn
2025
Leistungsphasen
1-8
UMBAU UND ERWEITERUNG EINES GEMEINDEHAUSES ZUR KITA
Seit längerem beschäftigt sich der Kirchenvorstand der Martin-Luther Gemeinde damit, wie ihr Gildehauser Gemeindehaus einer neuen Nutzung zugeführt werden kann. Die Idee, die Räumlichkeiten für eine Kindertagesstätte in lutherischer Trägerschaft zu nutzen, fand als Ergebnis der Überlegungen allgemeine Zustimmung.
Die Idee, die Bausubstanz des qualitativ hochwertig ausgeführten Gemeindehauses aus 1977 in allen Teilen in die neue Kita zu integrieren wurde dabei im Auswahlgremium sehr positiv bewertet und führte zur Auftragsvergabe. Der im Jahr 2000 erbaute Glockenturm bleibt als Reminiszenz an die bisherige Nutzung bestehen.
Der Gottesdienstraum im Zentrum der Anlage wird zum Mehrzweckraum der neuen Kita. Das Glasmosaik sowie das Pfingstfenster des Gildehauser Künstlers Friedrich Hartmann in diesem Raum bleiben erhalten.
Nach den Entwurfsüberlegungen von Margarethe Lichtner wird im südwestlichen Bereich das Bestandsgebäude um zwei kleine Satteldachhäuser ergänzt, in dem sich die Gruppenräume der beiden „Regelgruppen“ befinden. Sie unterscheiden sich in ihrer Außenwirkung gegenüber dem Bestand und sind somit klar als Erweiterung wahrzunehmen. Sie bieten Platz für insgesamt 50 Kinder im Alter von 3-6 Jahren und sind über einen Spielflur miteinander verbunden.
In gleicher, additiver Bauweise findet die Krippengruppe für 15 Kinder von 0-3 Jahren und die Personalräume in der östlichen Erweiterung Platz. Die Satteldachflächen sollen hier für eine Photovoltaikanlage genutzt werden.
Bauherr
ev.--luth. Kirchenkreisamt Meppen
Baubeginn
2025
Leistungsphasen
1-5
ERWEITERUNG HOTEL NICKISCH IN SCHÜTTORF
Das 4 Sterne Hotel Nickisch in Schüttorf erhält durch die stetig gestiegene Nachfrage nach Übernachtungen im familiengeführten Betrieb einen Erweiterungsbau, durch den die Zimmerkapazität von 34 auf 62 Doppelzimmer wächst.
Die Erweiterung im südöstlichen Teil des Grundstücks schließt an das bestehende Hotel aus den 90er Jahren an und wird in Holzmodulbauweise errichtet.
Das innovative und nachhaltige Konzept, mit in der Werkstatt vormontierten und fertig ausgestatteten Raummodulen aus Holz das neue Gebäude zu erstellen, wird augenblicklich von der Fa. Busmann Holzbau aus Schüttorf realisiert.
Bauherr
Hotel Nickisch GmbH & Co. KG
Baubeginn
2025
Leistungsphasen
1-5
















